Suzhou AN Clubhouse
24 September 2007












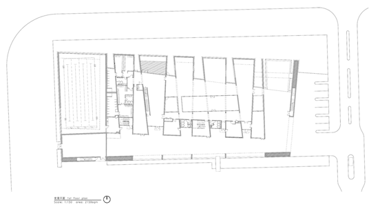
The club is formed by a folding wall of 500M long, which also encloses 13 separating courtyards. A delicate bias cuts through the building and guides people to enjoy the experience of “a different view with every step” within the spaces and landscapes. Each span has an irregular shape, and different spans integrate together and form a kind of introvert space; the transverse bridges cut the spans into spaces with different functions, such as interiors, courtyards, atrium, water and bridges, which reinterpreted the Suzhou tastes in a different way.
会所由一面长达500余米的连续墙体转折而成,其间围合成十三个相对独立的院落。微妙的斜线切成的路线引导人在其中享受“曲径通幽”的体验。每个开间都为 不规则的瓶口状,开间与开间相互咬合形成内宽外窄的内向空间;横向的桥把开间切成不同功能的空间。室内、院落、中庭、水体和桥,这些元素相互交错,使得苏 州趣味再次呈现。